Charmantes Reiheneckhaus mit großem Potenzial in ruhiger Lage
✓ Garage ✓ Terrasse ✓ Kamin ✓ Zentralheizung ✓ Keller ✓ Garten
Preise & Kosten
Immobilie
✓ Garage ✓ Terrasse ✓ Kamin ✓ Zentralheizung ✓ Keller ✓ Garten
Beschreibung
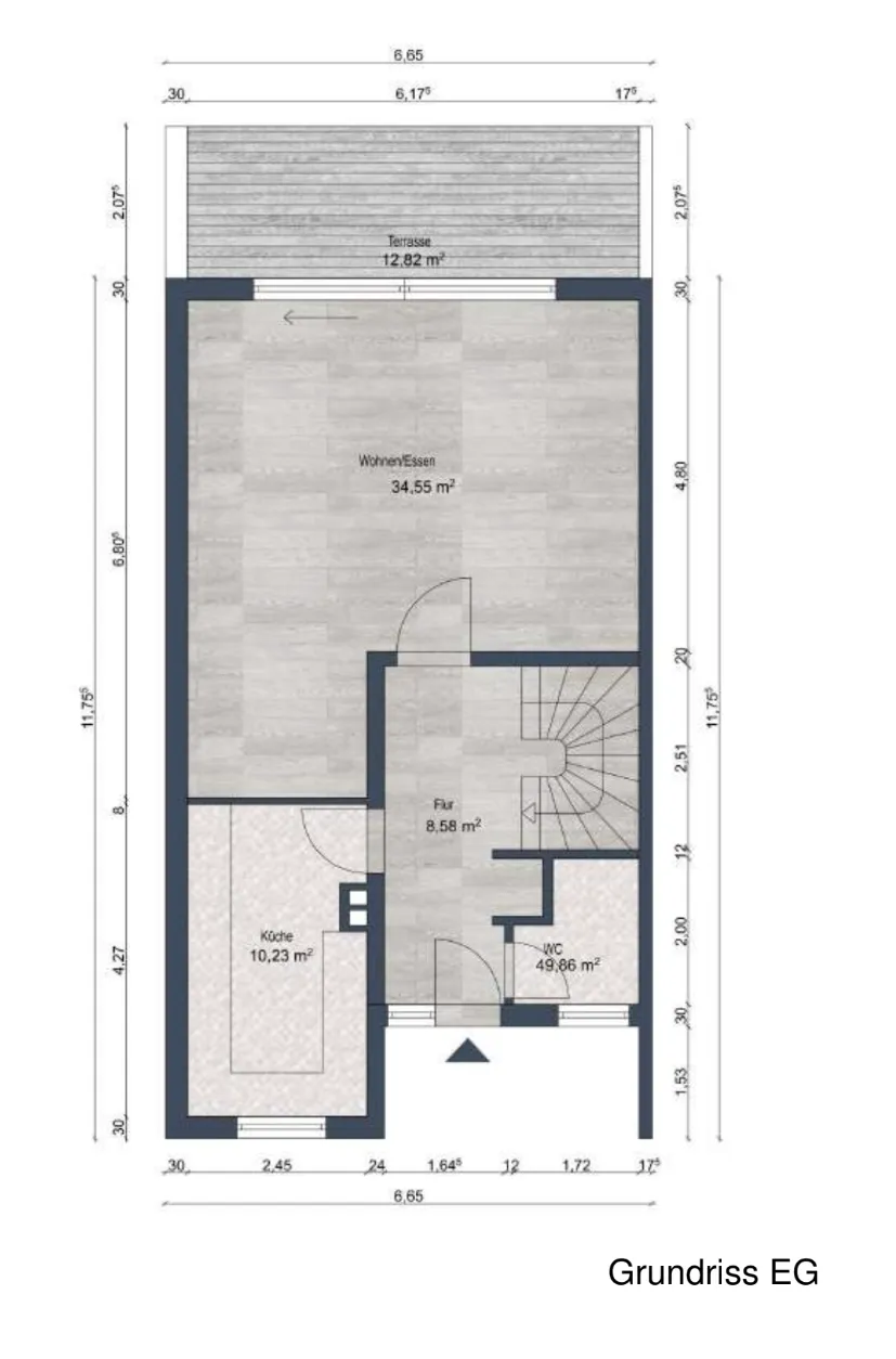
Dieses Reiheneckhaus aus dem Baujahr 1974 bietet eine hervorragende Gelegenheit für alle, die ein Zuhause nach ihren eigenen Vorstellungen gestalten möchten. Auf einer Wohnfläche von ca. 111 m² und einem großzügigen Grundstück von etwa 437 m² eröffnet sich viel Raum für individuelle Ideen und kreative Konzepte.
Die Immobilie verfügt über insgesamt vier Zimmer, darunter ein großzügiges Wohnzimmer sowie drei Schlafzimmer. Ergänzt wird das Raumangebot durch eine Küche, ein Badezimmer sowie ein separates Gäste-WC. Das Wohnzimmer bildet den zentralen Lebensmittelpunkt und wird durch einen Kamin ergänzt, der insbesondere in den kühleren Monaten für eine behagliche Atmosphäre sorgt.
Der durchdachte Grundriss ermöglicht vielfältige Nutzungsmöglichkeiten und bietet eine solide Basis für individuelle Gestaltungsideen. Das Haus ist voll unterkellert und verfügt zusätzlich über eine Garage, was sowohl praktischen Stauraum als auch Komfort im Alltag bietet. Besonders hervorzuheben ist das attraktive Grundstück, das viel Platz für Gartenliebhaber oder Familien bereithält.
Das Objekt befindet sich in einer sehr ruhigen Lage und eignet sich ideal für alle, die ein entspanntes Wohnumfeld schätzen. Der Zustand des Hauses ist stark renovierungsbedürftig, bietet jedoch genau darin eine große Chance: Mit entsprechendem Einsatz lässt sich hier ein echtes Schmuckstück schaffen.
Die Verfügbarkeit erfolgt nach Absprache. Insgesamt handelt es sich um eine Immobilie mit viel Potenzial – perfekt für Käufer mit Visionen, die sich ihren Wohntraum individuell verwirklichen möchten.
Ihr Ansprechpartner für diese Immobilie:
.webp)
Experte für Immobilien im Raum Kassel mit mehr als 20 Jahren Erfahrung.
Ihr persönlicher Ansprechpartner:
.webp)
Experte für Immobilien im Raum Kassel mit mehr als 20 Jahren Erfahrung.
Da wir die Objektangaben nicht selbst ermitteln, übernehmen wir hierfür keine Gewähr. Ein detailliertes Exposé stellen wir Ihnen gern auf Anfrage zur Verfügung.
























